Ufficio in vendita

Milano, Via Antonio Canova - Canova
€ 760.000
4 locali 4 locali
158 Mq 158 Mq
1 bagno 1 bagno

Ufficio in vendita

Milano, Via Antonio Canova - Canova

Descrizione annuncio

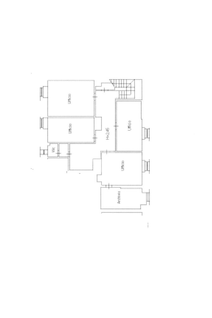
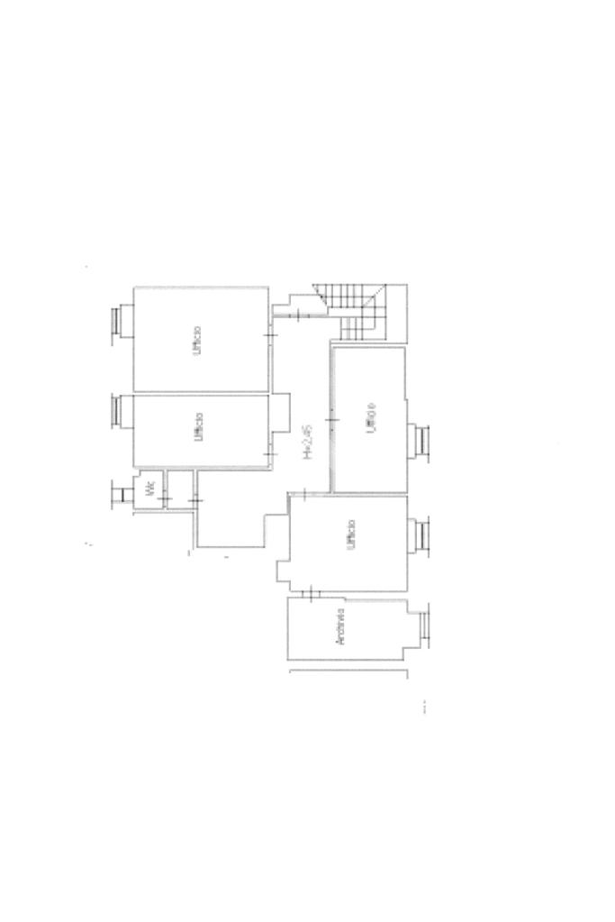
Nel cuore della località di Canova/Corso Sempione, a Milano, è disponibile un ufficio in vendita che offre una soluzione versatile per diverse esigenze professionali. Situato al piano basso con ingresso indipendente dalla strada, l'immobile si estende su una superficie di 158 mq, suddivisa in quattro locali ben distribuiti. La disposizione degli spazi consente di organizzare l'ambiente in modo funzionale, adattandosi a diverse tipologie di attività. L'ufficio è dotato di un bagno. La posizione strategica garantisce un facile collegamento con le principali arterie della città, rendendo l'ufficio una scelta ideale per chi cerca una sede operativa in una zona ben servita. La struttura conserva il fascino dell'epoca di costruzione, offrendo al contempo la possibilità di personalizzare gli interni secondo le proprie esigenze.

Per qualsiasi chiarimento o vista dei locali senza impegno non eistate a conttatarci al n 0248712334 o al cell 3881786027 dal lunedi al venerdi dalle 9.00 alle 12.30 e il sabato dalle 9.00 alle 12.30

Mostra tutto

Nelle vicinanze

Trasporto pubblico Trasporto pubblico
Domodossola
Domodossola
850 m
Conciliazione
Conciliazione
920 m
Milano Nord Cadorna
Milano Nord Cadorna
950 m
Milano Porta Garibaldi passante
Milano Porta Garibaldi passante
1,7 Km
Arco della Pace
Arco della Pace
220 m
Ricariche auto elettriche Ricariche auto elettriche
Green Park
680 m
A2A Fiera Est
690 m
AUTORIMESSA SEMPIONE 76
760 m
A2A Cadorna
910 m
A2A Isola Digitale Pagano
1,0 Km
Scuole Scuole
Beauty Centre of Milano
360 m
Scuola Primaria Piero Moscati Bianca Maria Sforza
430 m
Istituto Daniele Marignoni Marco Polo
440 m
Scuola secondaria di primo grado Moscati-Mameli
480 m
liceo classico Cesare Beccaria
500 m
Farmacia Farmacia
Farmacia Sempione
190 m
Società Cooperativa Farmaceutica
260 m
Farmacia Quinto Alpini
430 m
Canonica
580 m
Farmacia Orio
600 m
Ospedali Ospedali
Poliambulatorio Sassi
1,0 Km
Clinica Columbus
1,1 Km
Ospedale dei Bambini "Vittore Buzzi"
1,2 Km
Ospedale San Giuseppe
1,4 Km
Istituto Clinico Sant'Ambrogio
1,6 Km
Supermercati Supermercati
Carrefour Market
420 m
Kathay
560 m
Auchan
560 m
Simply Market City
630 m
Punto Simply
800 m
Negozi Negozi
To.Market
310 m
Lirecento
400 m
Casa del pane
410 m
Emporio l'Isola
480 m
Carrefour Express
490 m
Bar Bar
Kitsch Bar
190 m
Cream Lounge
200 m
Parco Milano
200 m
Bada Boom
200 m
Jazz Cafè
240 m
Ristoranti Ristoranti
Pizzeria Starita
170 m
La Posteria
180 m
Mammina
190 m
Milano 1979
190 m
Bottega Ghiotta
190 m
Mostra tutto

Caratteristiche

Rif.:
61164943
Piano:
1 di 6 con ascensore (Piano basso)
Condizionamento:
Assente
Ascensore:
Riscaldamento:
Centralizzato
Giardino:
Condominiale
Mostra tutto
Prezzo Prezzo
€ 760.000
Rata mutuo Rata mutuo
€ 3.549 / mese
Spese annue Spese annue
€ 1.650
Proponi il tuo prezzoProponi il tuo prezzo

Classe Energetica

G
G
G
G
G
G
G
G
G
EP globale non rinnovabile:
135.00 kW h/m² anno
EP globale rinnovabile:
135.00 kW h/m² anno
EP invernale del fabbricato:
EP estiva del fabbricato:
Anno di costruzione:
1950
Riscaldamento:
Centralizzato
Tipo impianto:
A radiatori
Tipo alimentazione:
Metano

Ti interessa visionare l'immobile?

Fissa un appuntamento  Fissa un appuntamento

Richiedi informazioni

Clicca su Leggi per aprire l'informativa
* Questi campi sono obbligatori

Calcola il tuo mutuo

Semplice e senza impegno
Anticipo

( % )
Mutuo

( % )

pochi semplici passi

inserisci i tuoi dati
Questionario completato
Grazie per aver richiesto un appuntamento senza impegno con un nostro Consulente del Credito e Assicurativo.

Hai inserito correttamente tutti i dati necessari e a breve riceverai una e-mail con un link da convalidare per inviare i tuoi dati.
Affiliato
Impregest Sas
Via Rembrandt, 20 20149 Milano (MI)

Il nostro staff


  • Grazia Stefania Fierro
    Coordinatrice

  • Nicola Tadolti
    Affiliato
Via Rembrandt, 20 20149 Milano (MI)
Zona: Milano Ovest
Mostra su mappa
Orari: Dal Lunedi al Venerdi dalle 9.00-12.30 14.30-19.30 il sabato mattina dalle 9.00 12.30. Tecnocasa per l'impresa Affitto/Vendita capannoni magazzini negozi uffici laboratori. Effettuiamo valutazioni gratuite
Affiliato
Impregest Sas
Via Rembrandt, 20 20149 Milano (MI)

2026 Tecnocasa Franchising S.p.A. - P. IVA 08365160152 - Via Monte Bianco 60/A 20089 Rozzano (MI). Ogni agenzia ha un proprio titolare ed è autonoma. Privacy policy | Policy utilizzo | Cookie policy